整體布局是骨骼
軟裝陳設是表皮
色彩藝術賦予空間靈魂
色彩營造的氛圍感決定著一個家的氣質,素雅或濃烈,傳達出不一樣的空間情緒。現代居家空間中,色彩運用更加多元化,視覺觀感上冷暖相宜,和諧溫馨。
——
本案位于江蘇九溪墅,CBD家居巧借布局、軟裝、色彩等元素,交織呼應,打造出時尚宜居之家,從整體到局部,簡約而不失質感,成就詩意棲息~
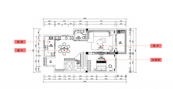
一層

01
客廳
Living room
—
空間雖小,其韻悠長。色彩、材質延續極簡風,營造出素雅簡靜的空間氛圍。內設CBD家居·黑金 | HG038沙發,暖橘色像一抹日出,鮮亮的色彩驅散緊張煩悶;寬厚扶手、飽滿座靠包,簡單一字型排布,別具秩序美感。

CBD家居·黑金 | HZ207單椅,蒂芙尼藍浪漫舒和,簡約構型,氣質取勝,橙藍相間的客廳,更顯清雅飄逸,窺見超脫的生活態度。
02
餐廳
Dining room
—

餐廳與廚房對望,不設門隔斷,增強空間感,一家人的用餐時光,更顯通透自然。
CBD家居·黑金 | HZ205餐桌,大理石桌面圓潤有型,與燈飾呼應,詮釋家的溫情;增加轉盤功能,現代感更強烈,倒錐形桌柱設計,精巧別致,搭配橙色餐椅,色彩豐富,點亮一日三餐。

03
長輩房
Elder room
—

胡桃木色地板運用于所有臥室空間,打造典雅高貴的視覺觀感。長輩房軟裝陳設不宜復雜,CBD家居·云豹 | Y103軟床,綜合美感與實用主義,不顯張揚的青灰色內斂沉靜,舒緩睡眠氛圍,獨立雙靠包寬厚飽滿,舒適承托長輩腰脊,更顯貼心。
二層

04
主臥
Master bedroom
—

開放式的布局屬性,讓主臥空間擁有動態美感。推拉門連接陽臺,光線充裕;定制衣柜,增加儲物收納功能,半隔斷處理,打造舒睡區和更衣區,便捷生活。配設CBD家居·白金 | BS6029-1軟床,米白色增加浪漫風情,齊邊框內嵌床尾節省空間,簡潔大氣。
05
男孩房
Boy's bedroom
—

藍色清爽自然,奠定空間的寧靜氛圍,男孩房不需要繁雜的裝飾,秩序感、簡單化的審美格調是關鍵。一款CBD家居·白金 | BS009軟床,嬰兒藍也是百搭色,適應各年齡階段,琴鍵式靠包輔以拉點淺嵌設計,提高空間質感。
06
女孩房
Girl's bedroom
—

橙色背景墻設計,為臥室空間增添活力,整體色彩的碰撞同時引發更多想象力。增設CBD家居·白金 | BS009軟床定制款,色系更加淡雅,氛圍更顯和諧,得到舒適的生活體驗。
07
書房
Study room
—

在浮躁的生活里開辟一處凈地,書房是最靜謐的私人領域。黑白灰三色巧妙完成美感的參差過渡,書桌線條簡潔利落,質感可見,橙色桌椅賦予空間跳躍感,感受動靜相宜的色彩藝術,與生活美學不期而遇。
負一層
08
茶室
Tea room
—
居主頗喜歡茶藝之道,慢品怡情。
茶室的空間風格極簡化,大理石墻面、地板,演繹現代風,質感溫潤,定制柜內設暖色光線,觸動視覺感光。CBD家居·黑金 | HG558餐桌,潤白大理石桌面呼應空間整體,幾何構型的桌腳,堅韌穩固,延伸生活美學。

白色自有白色的魅力,純凈似水,包容萬象,是平淡生活的縮影。巧用軟裝的色彩藝術打造出時尚治愈的居所,賦予生活儀式感,閃耀多彩光芒。
——
歡迎您前往離您最近的CBD家居專賣店體驗選購,質感家居好物、全屋定制服務,全方位為你打造理想之居,詩意棲息~






